63 Dronningens Gade, Charlotte Amalie, St. Thomas, US Virgin Islands, 2012
Professional
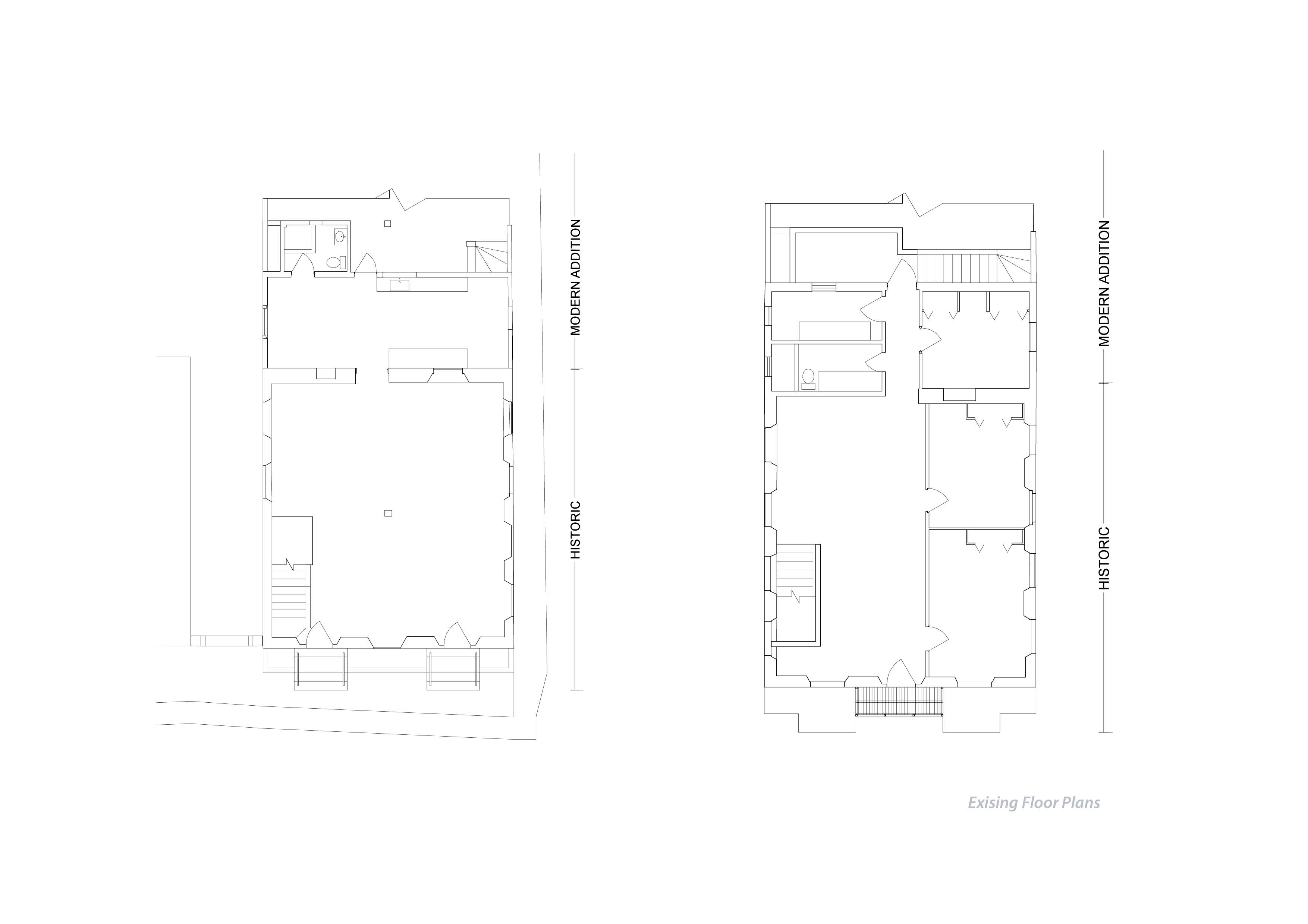
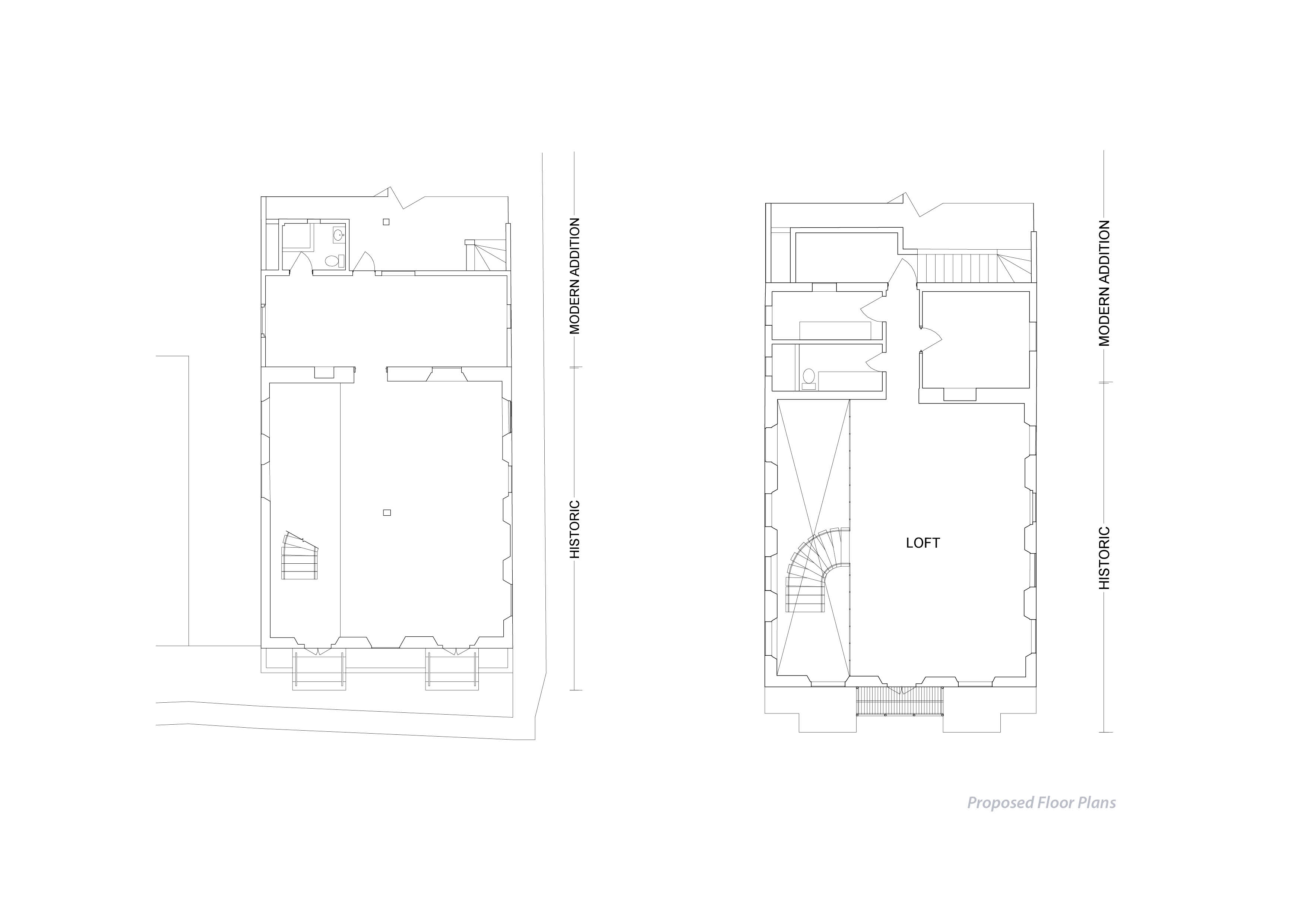
The first known records for this property date back to 1831, after which the property was transferred several times until 1883 when it came into the possession of the Blake Family where it remained for several generations until Alfredo Lima purchased it from the Blake’s in 1958. The building is a two-story, masonry, structure facing south on the southernmost corner of Dronningens Gade and Bjerge Gade, in the historic district of Charlotte Amalie. The building has been vacant for the past decade. The exterior of the structure has suffered moderate water damage. Through careful research and collaboration with the local SHPO, the building will be rehabilitated, retaining as much historic integrity and character as possible.
Work Completed:
Research, Measurements/Surveying, Drawings (Existing and Proposed), Nominations, Bidding and Scope
Discover more from Heritage Matters
Subscribe to get the latest posts sent to your email.









